室内地面装修大多会选择铺设环氧磨石
环氧磨石地坪,是模仿水磨石地坪的新型地坪
拥有环氧树脂地坪的所有优异性能
它还可以设计成各种图案
体现设计上的灵活性
俨然成为了室内地面装修的新宠儿

而地面设计的秩序感
是整个空间乃至建筑的一个重要组成部分
今天就来说说环氧磨石地面的设计使用原理
先来说说什么是环氧磨石地面
环氧磨石地面
什么是环氧磨石
环氧磨石(Epoxy Terrazzo),以无溶剂环氧树脂作粘结剂,混以不同的装饰性骨料,经多道精细工序制作而成。
是一种新型的,环保的,并经过LEED认证的地坪系统,在欧美国家的多个城市、多个公共建筑,如机场、博物馆、医院、学校等区域都得到了大量的应用。
环氧磨石的优势是什么?
对于设计师来说,建筑节能、环保、耐久性、多种设计选择以及成本是其在设计选用地面材料时优先考虑的因素。
环氧磨石具有非常多的优势:
色彩绚丽,图案精美,无限设计选择
耐用持久,使用寿命与建筑物相当
致密无缝,表面均一
易清洁保养,维护费用低
零VOC,使用回收材料,符合绿色建筑LEED认证
不利于霉菌滋生,适用于多种特殊场合
自重轻,低荷载,适合多层建筑

怎么设计
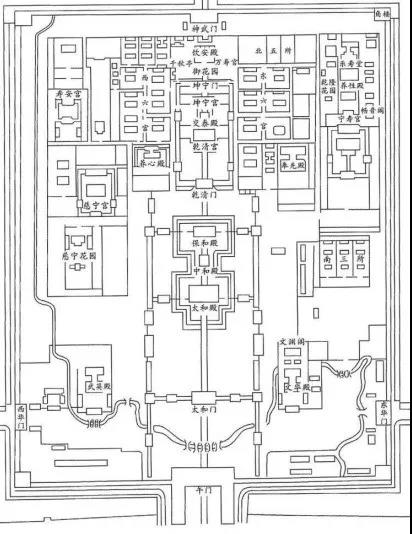
01、轴线
由空间两点连成的线,形式和空间可以关于此线呈对称或平衡的方式排列
总结形式:A,B,C/A1,B1,C1...
适用原则:
l 暗示着对称与均衡,
l 本质上是线式状态,具有方向性引导运动,
l 两端必须有明确的形式或空间,
l 终止要素可以是垂直面、集中要素形成的点(展品)、界限分明的空间或者向外开场的深渊门道
▲ 紫禁城轴线对称式布局
▲ 杭州潘功私塾
▲ 郑州银基冰雪酒店走廊一角
▲ 华为全球旗舰店
▲ 华为全球旗舰店
▲ 华为全球旗舰店



通过尺寸、形状或者位置与组织布局中其他形式或空间的对比,来表明某个形式和空间的重要性或特殊意义。
总结形式:A,A,A,A,A,A’(B)...
适用原则:
l 设计中需要反映形式与空间重要程度,以及在功能形式及象征意义发挥作用。
l 特别的尺寸
l 独特的形状
l 关键性的位置
▲ Grand gourmet新天地专卖店
▲ 望京SOHO电梯口
▲ 望京SOHO大堂